Eastwood Preserve Earns Unanimous Approval from Alachua County Commission

Eastwood Preserve Earns Unanimous Approval from Alachua County Commission

The Alachua County Commission voted unanimously on December 9, 2025, to approve the preliminary development plan for Eastwood Preserve, marking the first major housing investment in eastern Alachua County in decades. The decision follows extensive coordination between neighbors, environmental experts, County staff, and the project team—including eda consultants, inc., which served as the applicant on behalf of the developer and landowner.

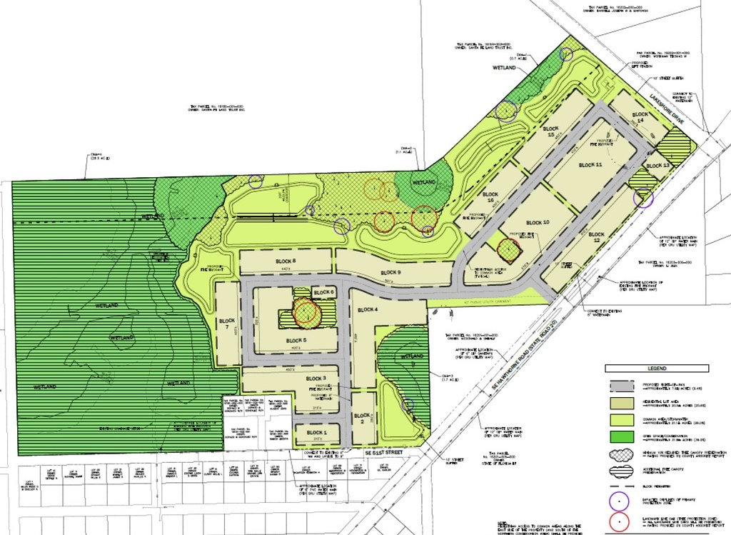
As the land planner, civil engineer of record, and surveyor, eda is playing a central role in designing a community that reflects the County’s conservation priorities while creating space for much-needed housing. The 81.3-acre development includes 149 single-family homes at low densities that are carefully arranged around significant natural features.

A Conservation-Centered Site Design

From the beginning, the project team worked to ensure that Eastwood Preserve would be shaped around the site’s most valuable ecological resources. Key environmental protections include:

  • Roughly 65% greenspace, including a 39% conservation management area
  • Preservation of all wetlands
  • Retention of nearly half of the existing tree canopy, including all seven landmark live oak trees
  • A 200-foot greenway buffer along the eastern boundary restricting roads and residential lots
  • Utilization of dark-sky lighting design principles
  • Strict irrigation and fertilizer controls to protect water quality

The development’s enhanced stormwater treatment facilities exceed standard requirements, a key measure given the site’s connection to Newnans Lake within the Orange Creek Basin Management Action Plan.

A Collaborative Process

Commissioners highlighted the project as an example of how development can—and should—occur in environmentally sensitive areas. Chair Ken Cornell called the proposal “the standard,” emphasizing the level of collaboration and responsiveness throughout the process. Other commissioners praised the team’s commitment to protecting trees, wetlands, and neighborhood character.

Next Steps

With preliminary approval in place, eda will now move into detailed engineering design for components such as stormwater systems, utilities, and roadways. We will then guide the development through another Development Review Committee review process for the Final Development Plan and return to the Commission for final plat approval.

Our Role

At eda, we are proud to lend our talents to a project that aligns so closely with our mission: combining technical expertise with local insight to help shape thoughtful, sustainable communities across North Central Florida. The approval of Eastwood Preserve represents an important milestone not only for eastern Alachua County, but also for collaborative, conservation-minded development across the region.

To read the county’s press release, visit https://alachuacounty.us/news/Article/Pages/County-Approves-Eastwood-Preserve-Development-.aspx

Let’s shape Florida’s future together.

From Gainesville to communities across North Central Florida, eda partners with developers, municipalities, and institutions to turn complex challenges into lasting solutions. Ready to start your next project?

Start the conversation today